Descrizione
La casa dei vostri sogni nasce in un piccolo condominio di soli 5 appartamenti in una posizione residenziale assolutamente privilegiata a Naters.
La planimetria ben studiata offre una piacevole e semplice routine quotidiana e un orientamento ottimale dell'appartamento con molta luce naturale e ambienti luminosi.
L'elevato standard di costruzione soddisfa i requisiti odierni per un'abitazione contemporanea con ottimi materiali e ogni comfort, tra cui il raffrescamento gratuito in estate con ventilazione controllata e l'isolamento con certificato GEAK.
I desideri dell'acquirente possono ancora essere pienamente integrati - in modo da avere l'opportunità di progettare il vostro appartamento individualmente secondo le vostre idee.
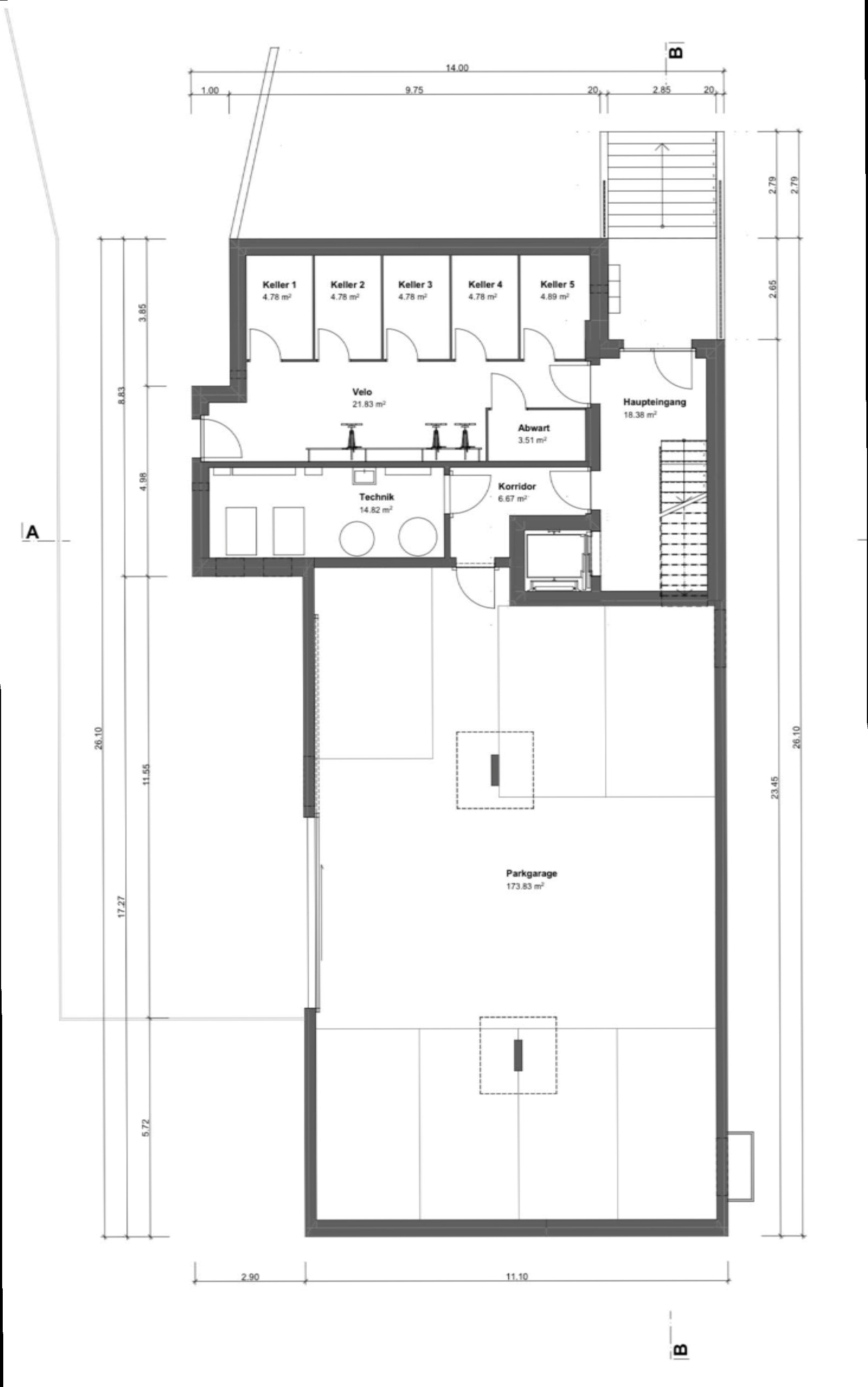
Dal parcheggio sotterraneo con il proprio posto auto e un deposito per biciclette e passeggini accessibile dall'esterno, l'ascensore vi porta direttamente all'appartamento, fornendo lo standard di accesso senza ostacoli disponibile oggi.
Posizione
La posizione elevata in Haselmattenstrasse 19 a Naters è assolutamente privilegiata e tranquilla.
Nelle vicinanze si trovano negozi, il campo sportivo e la piscina "Bammatta". La fermata dell'autobus locale si trova a pochi minuti a piedi.
Comodità
Dintorni
- Villaggio
- Quartiere residenziale
- Montagne
- Senza nebbia
- Area residenziale
- Negozi
- Strada commerciale
- Banca
- Posta
- Ristorante(i)
- Farmacia
- Stazione
- Fermata Bus
- Bambini benvenuti
- Parco giochi
- Asilo/nido
- Scuola materna
- Scuola primaria
- Scuola secondaria
- Centro sportivo
- Piscina pubblica
- Maneggio
- Vicino ad un campo da golf
- Centro tennis
- Pista da sci
- Comprensorio sciistico
- Piscina coperta
- Funivia
- Pista sci di fondo
- Sentieri per escursioni
- Pista ciclabile
- Campo da calcio
- Pista di ghiaccio
- Museo
- Parco acquatico
- Cinema
- Auditorium
- Ospedale / Clinica
- Casa di cura
- Dottore
- Terme
- Vicino a una dogana
Esterno
- Balcone/i
- Giardino
- Calmo/tranquillo
- Loggia
Interno
- Ascensore
- Garage
- Cucina aperta
- Cantina
- Armadio a muro
- Invetriatura tripla
- Luminoso
- Continuato
Dotazione
- Cucina attrezzata
- Cucina arredata
- Isola in cucina
- Fornello a induzione
- Forno
- Frigorifero
- Congelatore
- Lavastoviglie
- Lavatrice
- Asciugatrice
- Vasca da bagno
- Doccia
- Fibra ottica
- Citofono
- Porta del garage elettrica
- Ventilazione
- Layout completo
Pavimento
- Vinyl
Stato
- Nuovo
- Per costruire
Esposizione
- Nord
- Sud
- Est
Luce del sole
- Ottimale
- Tutto il giorno
Vista
- Bella vista
- Vista libera
- Vista distante
- Vista imperdibile
- Montagne
- Alpi
Stile
- Moderno
Standard di costruzione
- Minergie®
Etichetta energetica (CECE)
L’etichetta energetica risulta dalla valutazione della prestazione energetica globale (consumo e fonte di energia) e della prestazione dell’involucro edilizio.




